Cégünknél a magánszemélyek (jogi nyelven: fogyasztók) kiszolgálása a www.tibo.hu webáruházban történik.
Az oda való átjelentkezéshez kattintson az alábbi „Magánszemélyként lépek be” gombra!
|
Ez egy úgynevezett "Egyedi árképzésű, ár nélkül közzétett termék", melynek árát és szállítási idejét csak a műszaki tartalom pontosítását követően tudjuk az Ön részére - egy árajánlat formájában - elküldeni. Ennek több oka is lehet.
A normál árucikkekkel ellentétben az egyedi árképzésű termékek nem rakhatók a kosárba (e termékeknél nem található a "Kosárba" gomb) helyette a következők szerint tud rájuk árajánlatot kérni:
|
||||
| Figyelem! Ezt a terméket nem tartjuk raktáron. Ha rendel belőle, megrendelését előreutalással kell kifizetnie! | ||||
| Figyelem! Ha Ön e termék házhozszállítását kéri, akkor a szállítási költségről hamarosan egy egyedi árajánlatot küldünk e-mailben, de választhatja az áru békéscsabai boltunkban történő személyes átvételét is. Miért kell e terméknél egyedi árajánlat a szállításra? | ||||
|
Figyelem! Az adószámmal rendelkező vállalkozások és közintézmények nagykereskedelmi áron történő vásárlásához regisztráció / bejelentkezés szükséges! |
||||
A termék megvásárlásához jelentkezz be
Termék cikkszám: MP115000MINTA
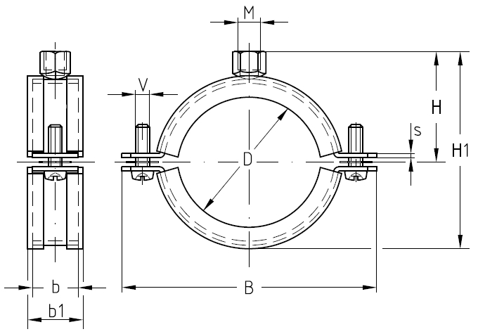
Anyaga: V2A rozsdamentes acél. Kétcsavaros légtechnikai csőbilincs M8 (NA 450 mm-től M10) menettel, DÄMMGULAST® zajcsökkentő betéttel, rozsdamentes spiko csövek felrögzítésére a légtechnikai rendszerekben. A hangcsillapító betét hőmérséklet tartománya: -50 ºC -tól +110 ºC-ig. A csőbilincs ajánlott maximális teherbírása: 0,50 kN. Mérettartomány: NA 80 - NA 710 mm között, minden járatos méretben.


Közvetlen levelezési lehetőség:
info@tibo.hu
A horganyzott acél gumibetétes légtechnikai csőbilincseket IDE KATTINTVA tekintheti meg