Cégünknél a magánszemélyek (jogi nyelven: fogyasztók) kiszolgálása a www.tibo.hu webáruházban történik.
Az oda való átjelentkezéshez kattintson az alábbi „Magánszemélyként lépek be” gombra!
|
Ez egy úgynevezett "Egyedi árképzésű, ár nélkül közzétett termék", melynek árát és szállítási idejét csak a műszaki tartalom pontosítását követően tudjuk az Ön részére - egy árajánlat formájában - elküldeni. Ennek több oka is lehet.
A normál árucikkekkel ellentétben az egyedi árképzésű termékek nem rakhatók a kosárba (e termékeknél nem található a "Kosárba" gomb) helyette a következők szerint tud rájuk árajánlatot kérni:
|
||||
| Figyelem! Ezt a terméket nem tartjuk raktáron. Ha rendel belőle, megrendelését előreutalással kell kifizetnie! | ||||
| Figyelem! Ha Ön e termék házhozszállítását kéri, akkor a szállítási költségről hamarosan egy egyedi árajánlatot küldünk e-mailben, de választhatja az áru békéscsabai boltunkban történő személyes átvételét is. Miért kell e terméknél egyedi árajánlat a szállításra? | ||||
|
Figyelem! Az adószámmal rendelkező vállalkozások és közintézmények nagykereskedelmi áron történő vásárlásához regisztráció / bejelentkezés szükséges! |
||||
A termék megvásárlásához jelentkezz be
Termék cikkszám: E0102012MINTA
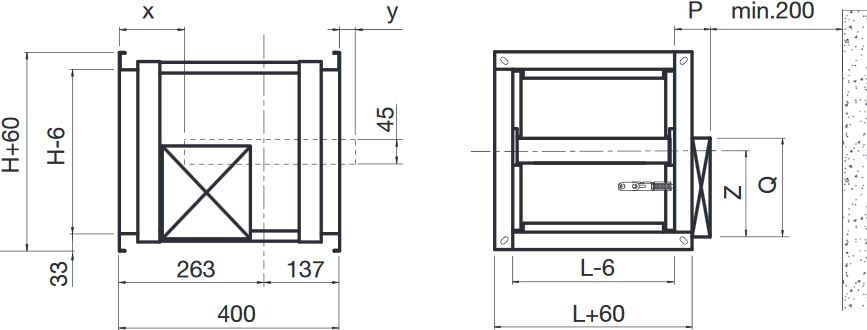
Kézi mozgatású, négyszög keresztmetszetű tűzvédelmi csappantyú 2 órás tűzállósággal, 72 °C-os olvadóbetéttel. Mérettartomány: 200x200 mm-től 1500x500 mm-ig, 50 mm-es lépcsőkben. Mivel a mérettartomány több, mint 400-féle méretvariációt ad ki, ezért ki kell választani a "Standard méretsor" ábra kék színnel jelölt négyzeteiből (vagy a gyorskiválasztó táblázatból) a terv szerint szükséges méretet, és az alatta látható linken árajánlatot tud kérni az adott méretű csappantyúról.





Amennyiben a "Standard méretsor" (vagy a gyorskiválasztó táblázat)
segítségével kiválasztotta az Önnek szükséges méretű tűzcsappantyút,
IDE KATTINTVA elküldheti nekünk az árajánlat kérését.
Közvetlen levelezési lehetőség:
info@tibo.hu