Cégünknél a magánszemélyek (jogi nyelven: fogyasztók) kiszolgálása a www.tibo.hu webáruházban történik.
Az oda való átjelentkezéshez kattintson az alábbi „Magánszemélyként lépek be” gombra!
|
Ez egy úgynevezett "Egyedi árképzésű, ár nélkül közzétett termék", melynek árát és szállítási idejét csak a műszaki tartalom pontosítását követően tudjuk az Ön részére - egy árajánlat formájában - elküldeni. Ennek több oka is lehet.
A normál árucikkekkel ellentétben az egyedi árképzésű termékek nem rakhatók a kosárba (e termékeknél nem található a "Kosárba" gomb) helyette a következők szerint tud rájuk árajánlatot kérni:
|
||||
| Figyelem! Ezt a terméket nem tartjuk raktáron. Ha rendel belőle, megrendelését előreutalással kell kifizetnie! | ||||
| Figyelem! Ha Ön e termék házhozszállítását kéri, akkor a szállítási költségről hamarosan egy egyedi árajánlatot küldünk e-mailben, de választhatja az áru békéscsabai boltunkban történő személyes átvételét is. Miért kell e terméknél egyedi árajánlat a szállításra? | ||||
|
Figyelem! Az adószámmal rendelkező vállalkozások és közintézmények nagykereskedelmi áron történő vásárlásához regisztráció / bejelentkezés szükséges! |
||||
A termék megvásárlásához jelentkezz be
Termék cikkszám: TE0102MINTA
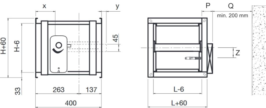
Motoros mozgatású, négyszög keresztmetszetű tűzvédelmi csappantyú 2 órás tűzállósággal, 72 °C-os olvadóbetéttel, 24 Voltos Belimo meghajtó motorral. Mérettartomány: 200x200 mm-től 1500x1000 mm-ig, 50 mm-es lépcsőkben. Mivel a mérettartomány több, mint 450-féle méretvariációt ad ki, ezért ki kell választani a "Gyorskiválasztó táblázat" ábra segítségével a terv szerint szükséges méretet, és az alatta látható linken árajánlatot tud kérni az adott méretű csappantyúról.





Amennyiben a "Gyorskiválasztó táblázat" segítségével
kiválasztotta az Önnek szükséges méretű tűzcsappantyút,
IDE KATTINTVA elküldheti nekünk az árajánlat kérését.
Közvetlen levelezési lehetőség:
info@tibo.hu
